villa signorile a Olgiate Comasco

In vendita
Villa
Olgiate Comasco
1.250.000 €
Descrizione
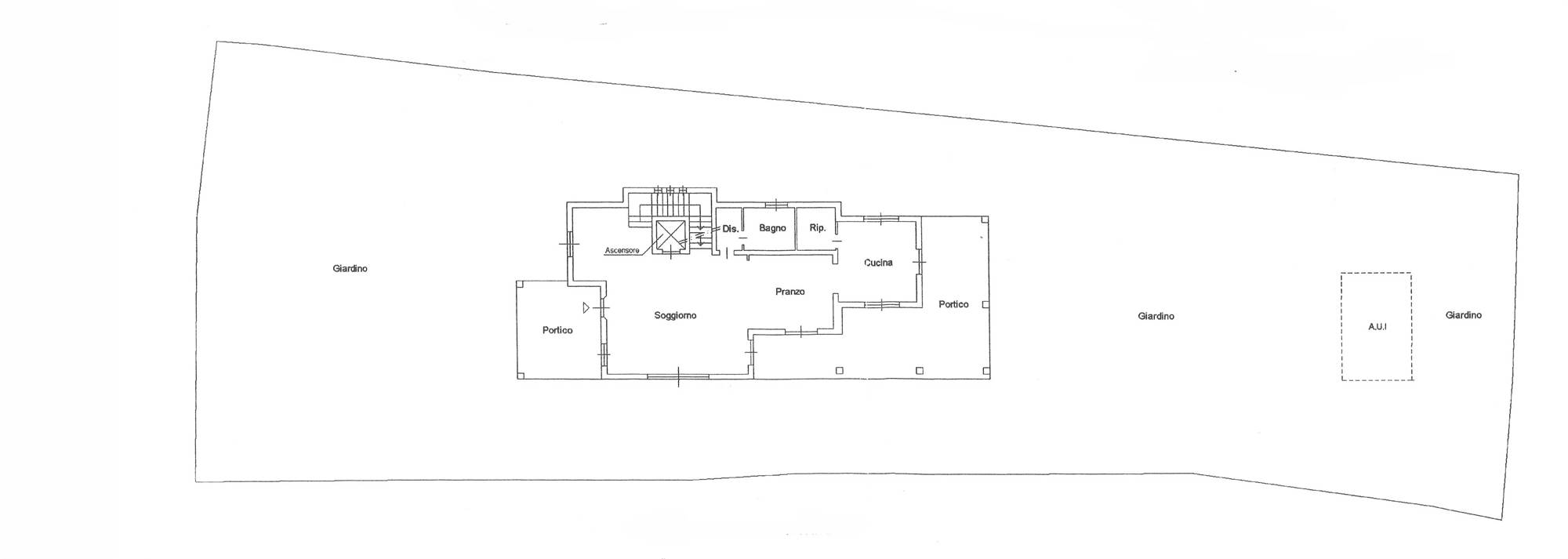
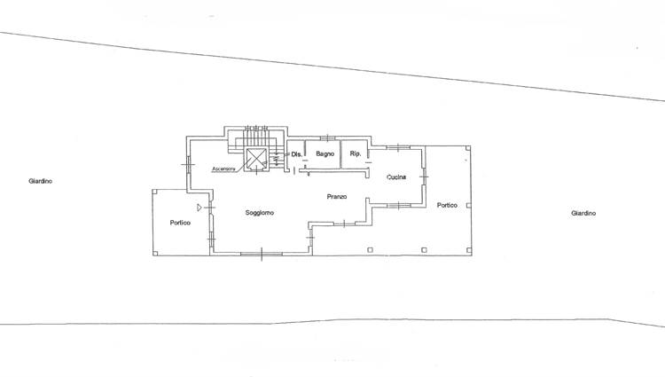
Nel centro di Olgiate Comasco, in posizione riservata e strategica, a pochi minuti da Como, Varese e dal confine svizzero: proponiamo in vendita villa indipendente di alto livello, caratterizzata da ampi spazi, impiantistica completa e finiture di pregio. Soluzione ideale anche per clientela svizzera grazie alla vicinanza al confine. La proprietà si sviluppa su tre livelli serviti da ascensore interno, garantendo comfort e funzionalità in ogni ambiente. Al Piano terra ampio soggiorno open space con zona studio, cucina e zona pranzo e accesso diretto al porticato coperto, ideale per pranzi e cene all’aperto, oltre a bagno di servizio e ripostiglio. Al Piano primo trovano spazio, 4 camere da letto, 3 bagni, di cui 2 en suite. Una camera con balcone privato, camera padronale con doppio balcone e cabina guardaroba. La proprietà è ottimamente illuminata grazie alla luce naturale che filtra dalle grandi vetrate presenti in tutti gli ambienti. Al Piano interrato Ampio open space con cucina, camino e zona relax, Cantina, Lavanderia, servizio e Locali accessori oltre ad autorimessa di 100 mq .Giardino piantumato che garantisce assoluta privacy con impianto di irrigazione, tettoia attrezzata con cucina esterna e zona barbecue. Contesto riservato e ben curato, Rivestimento esterno completo in pietra di Credaro, Ascensore interno, Impianto fotovoltaico con batterie di accumulo, Pannelli solari per acqua calda, Antifurto perimetrale e volumetrico, Impianto di irrigazione giardino, Ottima luminosità grazie alle ampie vetrate Soluzione ideale per chi cerca una villa rappresentativa, pronta da vivere e senza compromessi. Il comune di Olgiate Comasco è una graziosa località residenziale, situata in collina, circondata dalla natura tipica del Lago di Como. La zona è prediletta da molti, essendo ben collegata alle principali città della provincia, come Como, Cantù, Cernobbio e la dogana svizzera che dista solo 10 minuti. La città di Milano, si raggiunge in soli 40 minuti di auto. La prestigiosa città di Como si trova a soli 20 minuti ed è collegata anche da un servizio di autobus urbani mentre Lugano e il suo aeroporto sono facilmente raggiungibili in circa 30 minuti. L’aeroporto internazionale di Malpensa è raggiungibile in mezz’ora. Per gli amanti dello sport, la proprietà si trova a breve distanza da tre dei più prestigiosi golf club del territorio: il Golf Club di Monticello , il Golf Club la Pinetina di Appiano Gentile e il Golf Club di Villa d’Este.
Caratteristiche principali
Codice:
V000536
Città:
Olgiate Comasco
Categoria:
Villa
Locali:
6
Camere:
4
Bagni:
4
Mq:
500
Box:
1
Mq Box:
100
Mq Giardino:
1000
Balconi:
3
Classe energetica:
E
143
Stato Immobile:
Ottimo
Grado:
Signorile
Posizione:
Centro
Panorama:
Vista Aperta
Orientamento:
Nord Ovest Sud Est
Lati Liberi:
4
Giardino:
Privato
Arredi:
Non Arredato
Tipo Soggiorno:
Doppio
Tipo Cucina:
Abitabile
Riscaldamento:
Autonomo
Tipo Riscaldam.:
Caldaia a Condensazione
Tipo Impianto:
Pavimento
Fonte Energetica:
Metano
Acqua Calda:
Autonoma
Raffrescamento:
Split
Infissi:
Legno Triplo Vetro
Serramenti:
Ottimo
Pavim. Giorno:
Parquet
Pavim. Notte:
Parquet
Pavim. Cucina:
Ceramica
Pavim. Bagno:
Ceramica
Accesso Disabili:
Nessuna Barriera
Accesso interno disabili:
Pieno accesso
Isolamento:
Presente
Impianto d’irrigazione:
Si
Accessori
Antifurto
Aria Condizionata
Armadio a Muro
Ascensore
Camino
Canna Fumaria
Cancello Elettrico
Doppi Vetri
Doppio Ingresso
Impianto Fotovoltaico
Impianto Satellitare
Ingresso Indipendente
Pannelli Solari
Porta Blindata
Ripostiglio
Tende da Sole
Veranda
Video Citofono
Richiedi informazioni
Invia
Cookie preference