Villa in vendita a Morazzone

In vendita
Villa
Morazzone
748.000 €
Descrizione
Nel cuore di Morazzone, in posizione strategica a pochi minuti dagli svincoli autostradali e comoda con tutti i principali servizi, proponiamo in vendita un’elegante villa indipendente di recente realizzazione, ideale per famiglie numerose, professionisti o per chi desidera una soluzione abitativa con doppia unità.
L’immobile si distingue per l’elevato standard costruttivo, impianti di ultima generazione e finiture di livello superiore rispetto al capitolato, offrendo un’abitazione pronta da vivere senza alcun intervento.
La proprietà si sviluppa su più livelli:
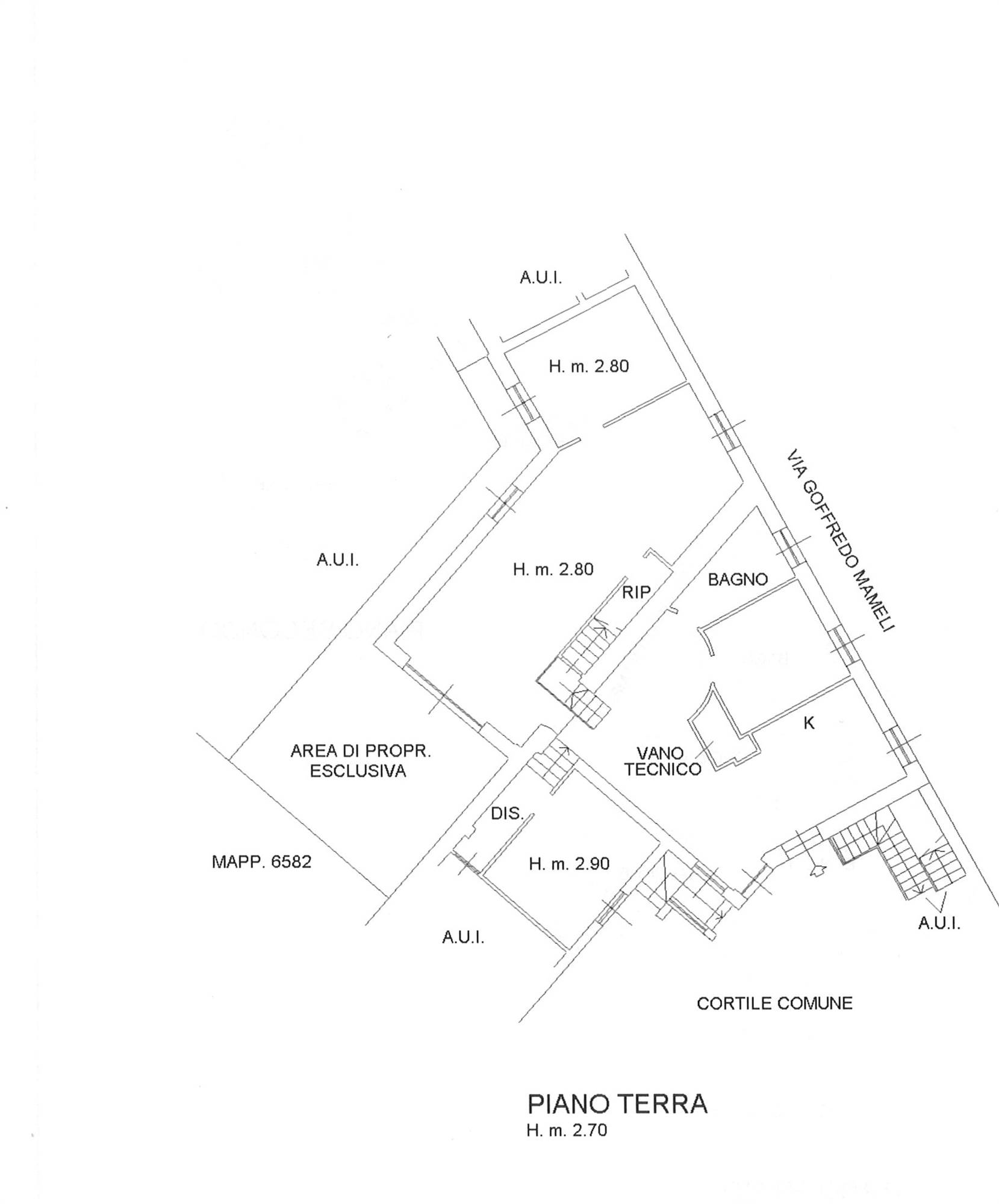
Piano terra
Accogliente ingresso, zona living ampia e luminosa, cucina abitabile, tre camere da letto e doppi servizi. Spazi perfettamente distribuiti per una quotidianità comoda e funzionale.
Piano primo
Seconda unità abitativa con soggiorno affacciato su uno scenografico terrazzo di circa 60 mq, cucina separata, due camere e bagno. Ideale per nuclei familiari indipendenti o per ospitare.
Piano superiore
Collegato internamente, troviamo ulteriori tre locali e un bagno: uno spazio versatile da destinare a zona notte aggiuntiva, studio professionale o area hobby.
Completano la proprietà:
Giardino privato ben sfruttabile
Box doppio, raro e perfetto per più auto
Ampia cantina al piano seminterrato
Soluzione pensata per chi cerca indipendenza, rappresentanza e flessibilità abitativa, in un contesto tranquillo ma perfettamente collegato.
📍 Posizione strategica: Morazzone consente di raggiungere rapidamente Varese, Como e i principali collegamenti autostradali, risultando ideale anche per frontalieri o per chi si sposta frequentemente per lavoro.
Richiesta: € 748.000 – Classe energetica 124 KWH/MQA
Caratteristiche principali
Codice:
V000540
Città:
Morazzone
Categoria:
Villa
Locali:
8
Camere:
6
Mq:
488
Box:
2
Posti auto:
4
Classe energetica:
C
124
Stato Immobile:
Ottimo
Grado:
Signorile
Posizione:
Centro
Panorama:
Vista Aperta
Orientamento:
Nord Ovest Sud Est
Lati Liberi:
4
Giardino:
Privato
Arredi:
Non Arredato
Tipo Soggiorno:
Soggiorno
Tipo Cucina:
Abitabile
Riscaldamento:
Autonomo
Tipo Riscaldam.:
Caldaia a Condensazione
Tipo Impianto:
Pavimento
Infissi:
Legno Doppio Vetro
Serramenti:
Ottimo
Pavim. Giorno:
Ceramica
Pavim. Notte:
Ceramica
Pavim. Cucina:
Ceramica
Pavim. Bagno:
Ceramica
Accessori
Antifurto
Aria Condizionata
Armadio a Muro
Camino
Canna Fumaria
Cancello Elettrico
Doppi Vetri
Richiedi informazioni
Invia
Cookie preference