villa a malnate

In vendita
Villa
Malnate
524.000 €
Descrizione
In posizione riservata e strategica, a pochi minuti dal confine svizzero e dai servizi di Malnate, proponiamo una villa unifamiliare di nuova costruzione progettata con comodi spazi.

Libera su quattro lati e circondata da un ampio giardino privato, questa abitazione offre spazi generosi, massima indipendenza e tecnologie di ultima generazione, con la possibilità di realizzare una piscina interrata per vivere appieno ogni stagione.

Grandi vetrate inondano di luce naturale la zona giorno, creando una perfetta continuità tra interno ed esterno. La distribuzione su tre livelli garantisce funzionalità e comfort, con ambienti pensati per la vita familiare e per il benessere quotidiano.

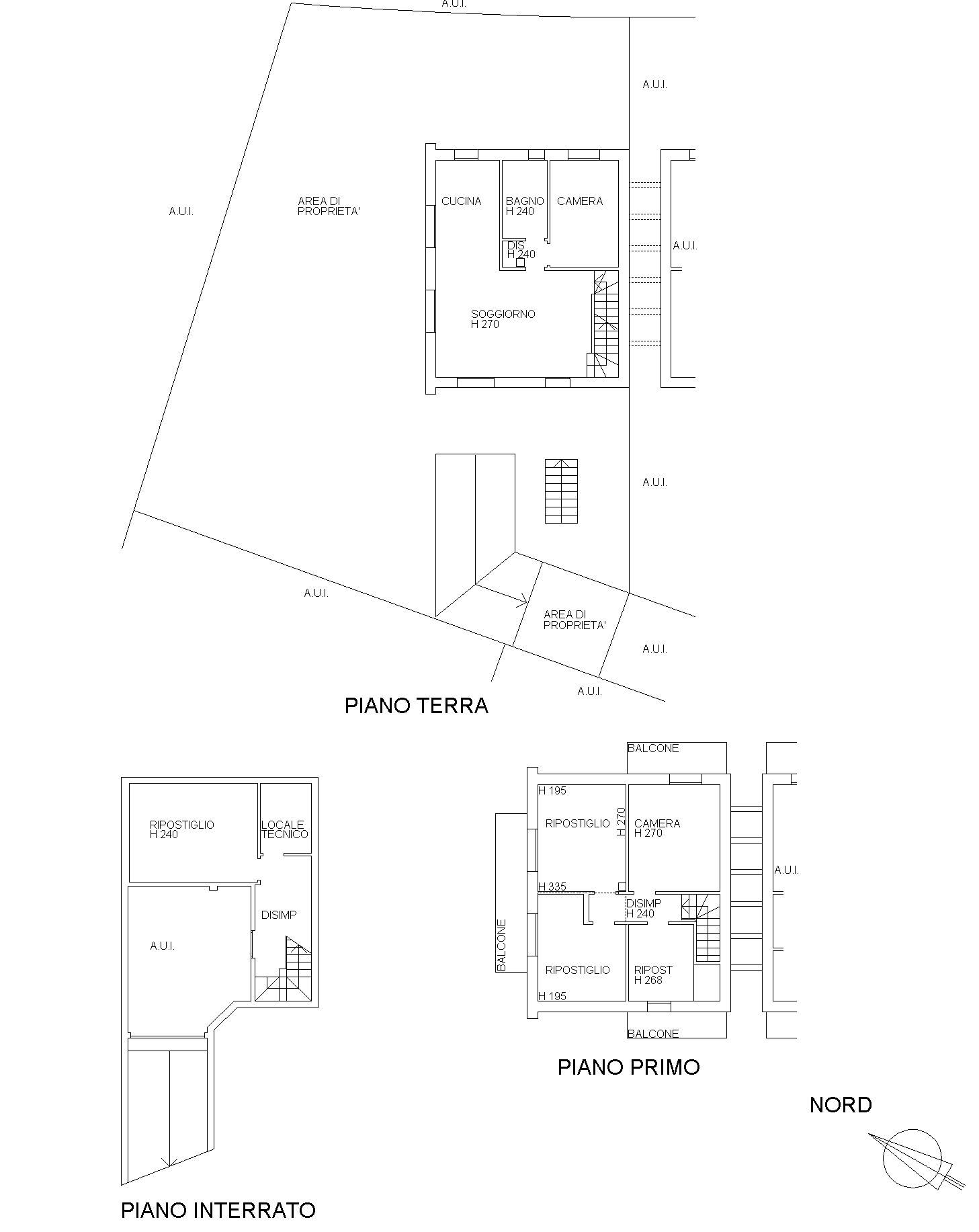
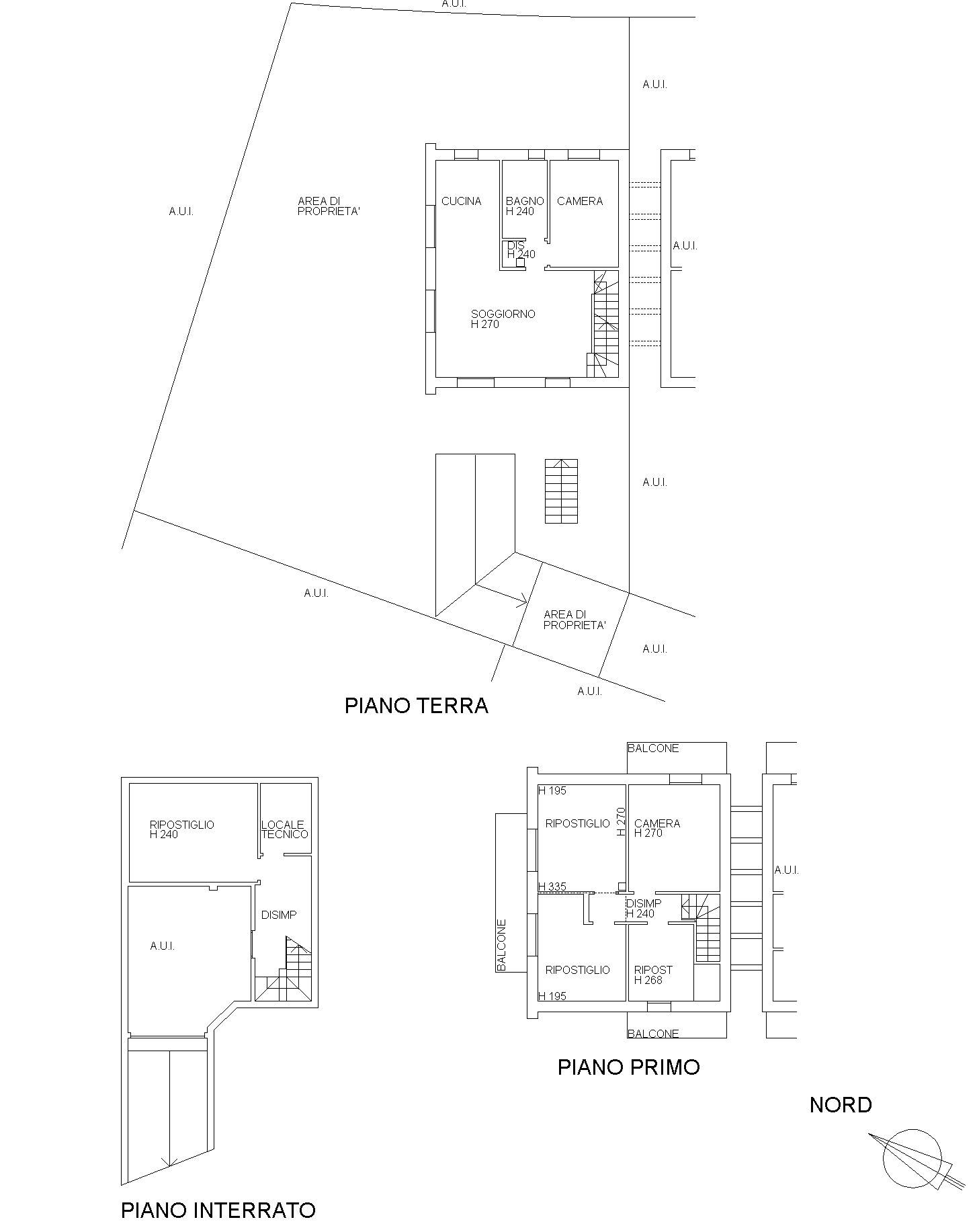
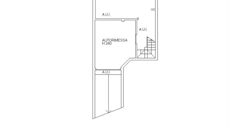
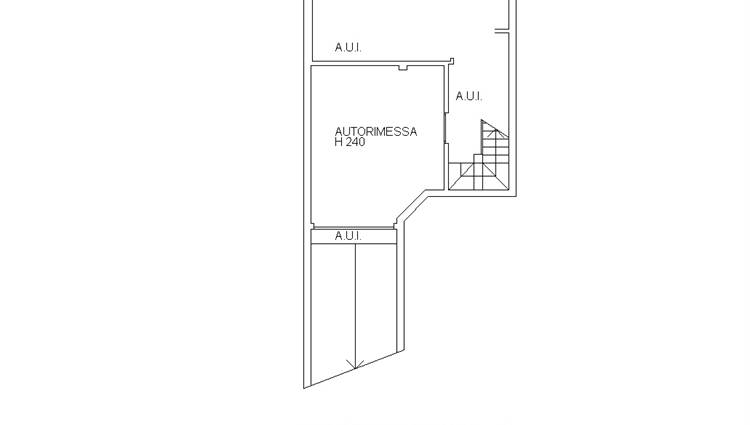
La villa ha ampia metratura ben 170 mq distribuiti su 3 livelli, giardino privato di 228 mq, autorimessa collegata direttamente all'immobile, posto auto di proprieta' esterno e si compone di grande soggiorno con cucina open space, 4 camere, doppi servizi e locali accessori.

Tecnologia, efficienza e comfort ai massimi livelli

Classe energetica A4

Impianto fotovoltaico privato

Riscaldamento a pavimento

Climatizzazione completa

Ventilazione meccanica controllata

Serramenti in PVC con triplo vetro

Predisposizione impianto antifurto

Abitazione completamente gas-free

Un isolamento termo-acustico evoluto garantisce silenzio, salubrità e consumi ridotti, per un comfort abitativo superiore.

Un investimento intelligente anche dal punto di vista fiscale

Possibilità di recupero IRPEF , secondo normativa vigente.
Caratteristiche principali
Codice:
V000535
Città:
Malnate
Categoria:
Villa
Locali:
5
Camere:
4
Bagni:
2
Mq:
170
Box:
2
Mq Box:
28
Posti auto:
1
Mq Giardino:
228
Balconi:
3
Classe energetica:
A4
10,46
Stato Immobile:
Nuovo
Grado:
Signorile
Posizione:
Centro
Panorama:
Vista Aperta
Orientamento:
Nord Ovest Sud Est
Lati Liberi:
4
Giardino:
Privato
Arredi:
Non Arredato
Tipo Soggiorno:
Soggiorno
Tipo Cucina:
A Vista
Riscaldamento:
Autonomo
Tipo Riscaldam.:
Pompa di Calore
Tipo Impianto:
Pavimento
Acqua Calda:
Autonoma
Infissi:
PVC Triplo Vetro
Serramenti:
Nuovo
Persiana:
Tapparella PVC
Pavim. Giorno:
Ceramica
Pavim. Notte:
Ceramica
Pavim. Cucina:
Ceramica
Pavim. Bagno:
Ceramica
Accessori
Antifurto
Aria Condizionata
Cancello Elettrico
Doppi Vetri
Pannelli Solari
Tripli Vetri
Richiedi informazioni
Invia
Cookie preference